




























Budapest, dist. 7, Dohány utca
Description:
----
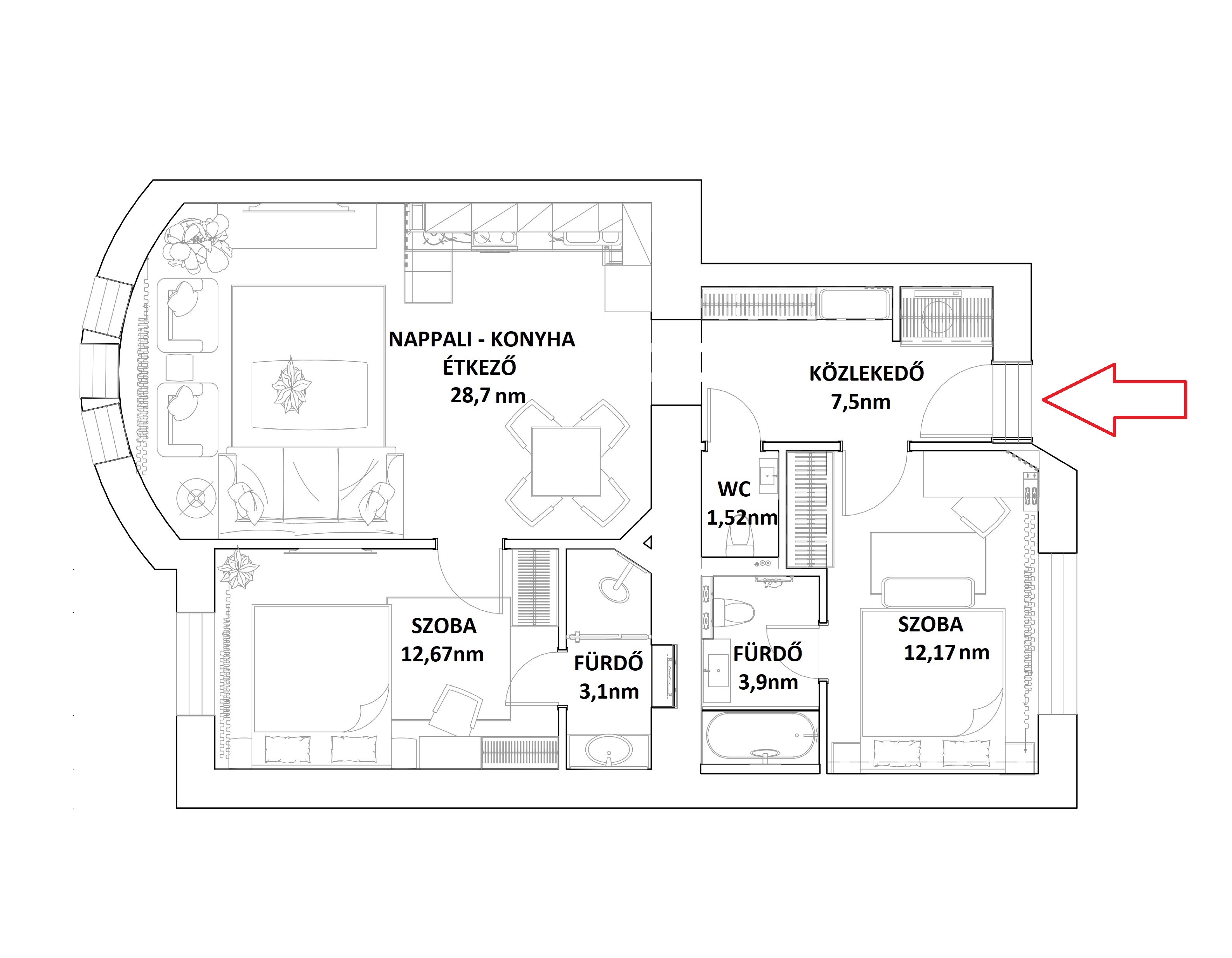
In the 7th district, on Dohány Street, a fully refurbished, renovated, 70 m² apartment is for sale. The property consists of a living room, two bedrooms, two bathrooms, and a separate toilet. The layout is practical and well-organised: the open-plan kitchen integrated into the living room creates a spacious central area, while the two bedrooms are positioned separately for greater privacy.
The apartment offers two full bathrooms. One is equipped with a bathtub and toilet, while the other features a shower. In addition, there is a separate toilet as well. Air conditioning will be installed in the living room, and the windows are fitted with manual shutters. Heating is provided by a gas boiler, and the apartment has its own water meter. The common cost is 21,000 HUF.
The renovation is carried out according to an interior designer’s plans, ensuring high-quality finishes, sanitary ware, and furniture.
Asking price: 159 million HUF, offered fully furnished.
The apartment is located in the inner part of Erzsébetváros, within the Grand Boulevard, on Dohány Street, close to Blaha Lujza Square, near the Akácfa Street area. The neighborhood offers numerous shopping options, cafés, restaurants, and cultural venues. Transport connections are excellent: tram, bus, and metro lines are easily accessible, allowing most parts of the city center to be reached quickly on foot or by public transport, making it convenient to get around even without a car.

